鉴赏| 国外多杆合一、智慧路灯杆体设计造型方案集锦
摘要:国外多杆合一、智慧路灯杆体设计造型方案集锦
一直以来,我们都在关注国内智慧灯杆杆体造型的设计情况,国外的情况又是怎么样呢? 项目一起看看国外的智慧灯杆、多功能杆情况吧!
SmartCiti Solutions
SmartCiti 多功能杆是一个将20项功能合为一体的解决方案,能够提高多个城市移动网络基础设施性能,部分功能如下:wifi、一键报警、隐蔽的高分辨率摄像头、环境监测(包括温度、湿度、气压、空气质量、风速、风向、闪电、紫外线指数等监测)、充电桩
以下是SmartCiti Solutions的两款智慧路灯,供大家参考:
一


二


HUB
HUB(澳大利亚)的SmartPole™由悉尼市政府于1997年构思,是为2000年悉尼奥运会而制定的街景升级计划的一部分。
SmartPole™拥有独创多功能磁极系统,曾获得澳大利亚设计奖。自成立以来,SmartPole积极在国际上进行推广,并取得了成功。
以下是HUB(澳大利亚)SmartPole™项目的落地效果图,供大家参考:
下图介绍了SmartPole™的功能情况,其功能包括但不限于照明、监控、电信技术、交通信号灯及标志等,可分为四大类别:照明、交通和路标&电信。
照明方面:这包括街道照明、行人照明、功能照明、安全照明和聚光灯等。
交通方面:完全遵循RMS,可容纳全套RMS配件,包括交通和行人信号灯、摄像机等。
路标方面:包括街道名称、停车标志、行人标志、实时显示的定向标识,还有横幅和电子指示牌。
电信方面:广泛的电信技术也可通过HUB在多功能杆上调节,闭路电视、交通摄像头、微型电池和实时显示面板是其更常见的配件。
HUB多功能杆可容纳照明、交通信号、招牌、横幅、监控、太阳能和电信配件,并根据项目需求进行自定义修改,其外观设计、高度、直径、搭载配件和预留配件都可以灵活处理。
HUB的核心系统叫UMS(Universal Mounting System),是一个多功能杆系统,可随时添加或删除相关应用。
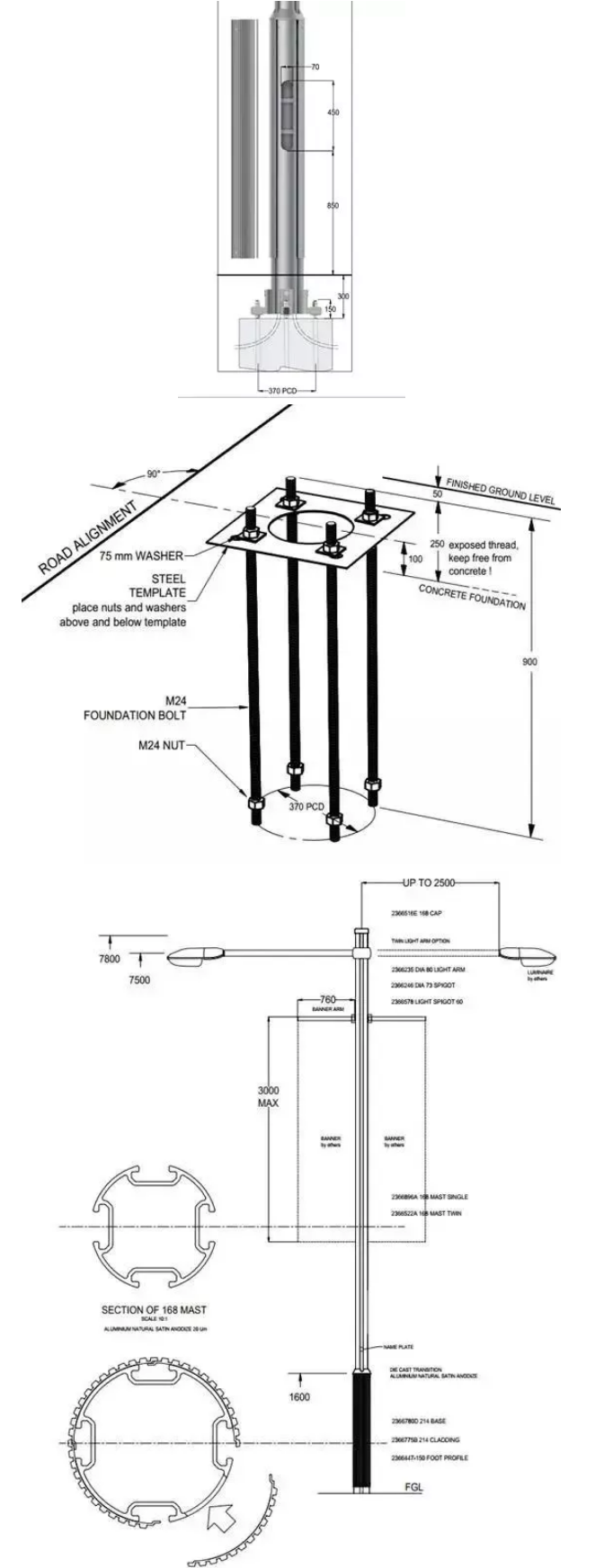
下图为杆体细节图:
Goldspar
Multipole™是Goldspar集团公司Fyntrim Pty Ltd部门的产品。
Multipole™和Multipole Solar™是该公司新一代多功能杆,100%铝结构,其重量仅为钢的三分之一,其高度在4米-18米之间,内部加固易于安装和运输,具有成本低、灵活性强、寿命长等特点。
该多功能杆还可以搭配交通灯及RTA配件、街道指示牌、直饮水机、太阳能板、垃圾箱等模块。
此外,Multipole™系统独具安全性。
下图为杆体细节图:
CCTV and Security Poles高度一般为12米,通过获得专利的Rivloc安全螺钉固定电线杆的舱口,只有使用特殊工具才能接触到杆里面的电子设备。
该产品适用于需要摄像机的地方,可搭配杆顶旋转摄像头臂、固定摄像头臂 (可变长度)等。
Solar Poles是由船用铝制成,高度可达18米,适用洪水易发区等多种地形,所配套的电子设备均可安装在杆顶,高于洪水位。
Tapered Light Poles采用船用铝制作,高达18米,直径250毫米,杆的形状根据需求调整,可以是直锥体,也可以是弯曲的。
Universal Light Arms采用船用铝制作,6米长的灯臂可以携带重达32公斤的灯具,臂长和安装角度可通过螺栓连接模块来决定和调整。
飞利浦与爱立信合作智慧杆件(概念)
American Tower
Smart Fusion Pole拥有优越的位置、能够大规模应用、安装快速简易的优势。
来源:灯杆智慧说





陕公网安备 61019002000416号

业务咨询